Use Case Demo

Automatische Extraktion von Informationen aus 2D-Plänen

Zur Landing Page
Plan-Information

Crop-in-Crop Logik

Durchklickbare Demo
Zuerst wird ein Geschoss auf dem Gesamtgrundriss gewählt. Danach können Stiegen nur innerhalb dieses aktiven Geschossfeldes definiert werden.
Noch kein Plan ausgewählt.
Plan-Viewer

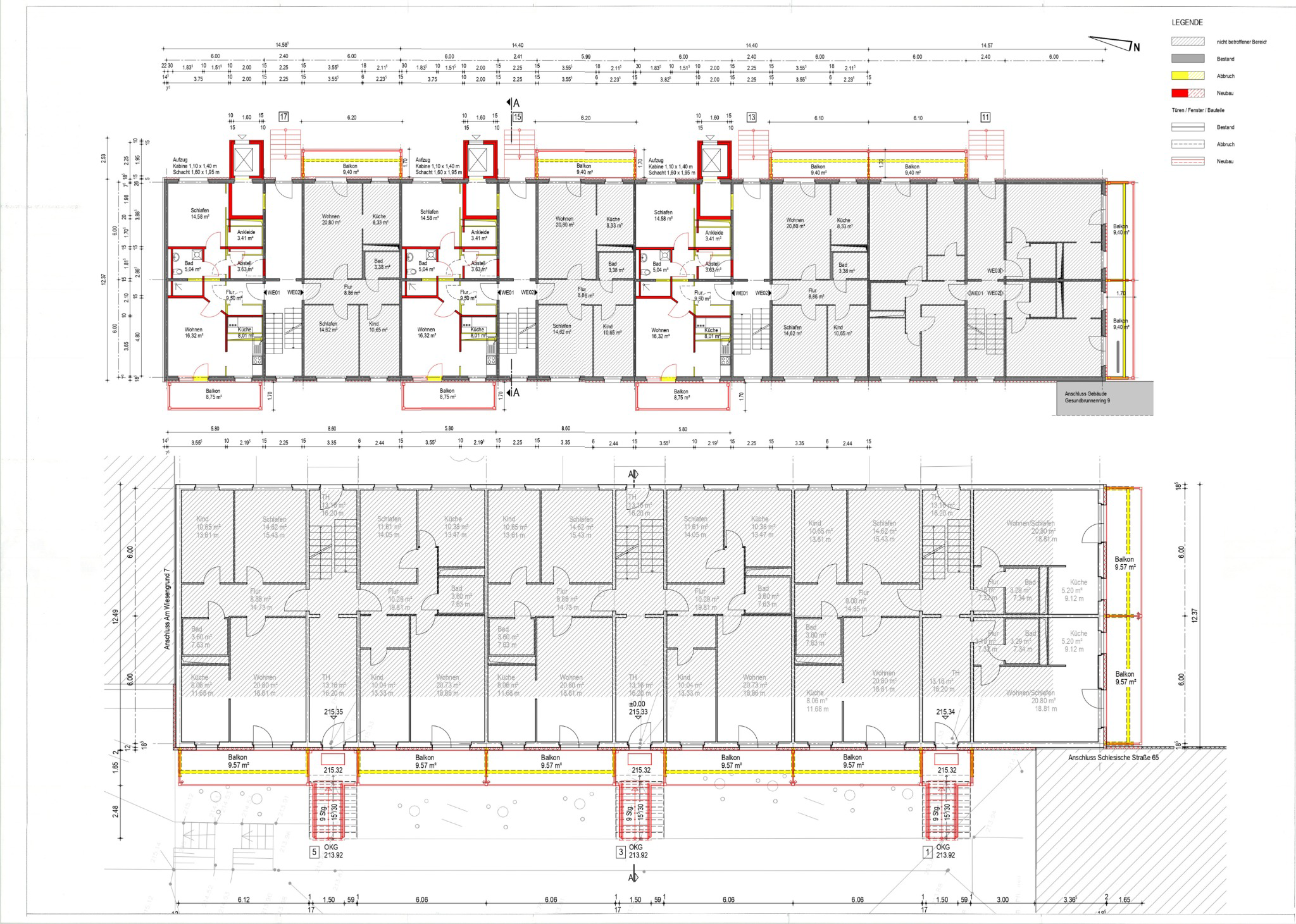
Grundriss upload

plan-sample.png Geschoss → Stiege
1. Geschoss auf dem Gesamtgrundriss wählen 2. Stiegen nur im aktiven Geschoss definieren
Beispielgrundriss
Stiegen nur innerhalb dieses Feldes
Stiegen nur innerhalb dieses Feldes
Strukturierte Ergebnisse

Vordefinierte Tabellenstruktur

Warte auf Auswahl
room_id unit floor label area_m2 finish status
WE01.R1WE01EGFlur9.50Fliesehigh
WE01.R2WE01EGWohnen16.32Parketthigh
WE01.R3WE01EGKüche8.01Fliesehigh
WE02.R2WE02EGWohnen20.80Parketthigh
WE02.R7WE02EGBalkon9.40Außenbelaghigh
door_id from_room to_room door_type zone confidence
D2W1.R1W1.R2InnenWohnung WE01high
D4W1.R1W1.R5InnenWohnung WE01high
D6W1.R2W1.R8BalkonBalkonzone Südhigh
D8W2.R1W2.R2InnenWohnung WE02high
D12W2.R2W2.R7BalkonBalkonzone Südhigh
window_id room_id orientation type zone confidence
F1W1.R2außenFensterWohnung WE01high
F2W1.R5außenFensterWohnung WE01high
F3W2.R2außenFensterWohnung WE02high
F4W2.R3außenKüchenfensterKüchen- und Nassraumkernhigh
F6W2.R6außenFensterWohnung WE02high
wall_type category thickness_cm mapped_type subtype_hint confidence
AW1AW32AW_STDloadbearing_likelyhigh
IW1IW20IW3loadbearing_likelyhigh
IW2IW14IW2light_partition_likelyhigh
IW3IW12IW1light_partition_likelymedium
Beispielhaft extrahierbare Informationen

Typische Outputs

  • Raumnummern und Raumbezeichnungen
  • Flächen aus Raumstempeln
  • Bodenbeläge und Nutzungszuordnung
  • Tür- und Fensterbeziehungen je Raum
  • Planmetadaten wie Geschoss, Stiege, Version
Weitere passende Anwendungsfälle

Erweiterbare Analysebausteine

Ihr Feedback

Was wäre für Ihre Praxis besonders relevant?